
| 礼金 | 1ヶ月 | 敷金 | 1ヶ月 |
|---|---|---|---|
| 築年月 | 1982年10月 | 間取 | 7DK(1階:和8・和8・和6.5・和5.3・洋8・DK 2階:和6・洋8) |
| 所在地 | 長野市篠ノ井御幣川1011-5 | 建物名 | |
|---|---|---|---|
| 賃料 | 18万円 | 間取 | 7DK |
| 礼金 | 1ヶ月 | 敷金 | 1ヶ月 |
| 構造 | 木造 | 保険 | 有 |
| 完成年月日 | 1982年10月 | トイレ種類 | 水洗 |
| 総階数(地上) | 2階 | 下水道 | 公共下水道 |
| 通学区 | 長野市立通明小学校(650m) 長野市立篠ノ井東中学校(1600m) | 引渡/入居日 | 相談 |
| 詳細間取 | 1階:和8・和8・和6.5・和5.3・洋8・DK 2階:和6・洋8 | ||
| 駐車場 | 有 | ||
| 設備 | |||
| 交通 | 電車:篠ノ井線篠ノ井駅 1500m 徒歩19分 自動車5分 電車:北陸新幹線長野駅 10100m 自動車23分 バス:長野市乗合タクシー 横田塩崎線線御幣川バス停 180m 徒歩2分 高速道路:長野道更埴I.C. 車6分 | ||
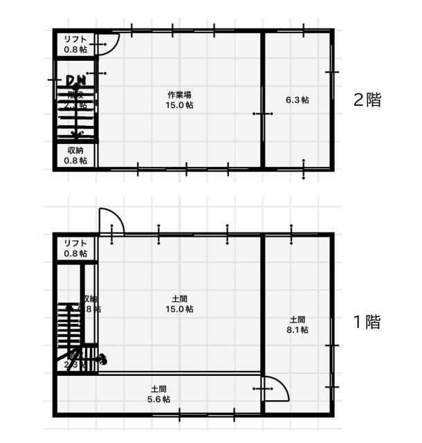
| 備考 | 敷地内に家庭菜園として使える約8畳のスペース有り/庭の手入れは借主の負担で行うこととする/倉庫(1階:土間15帖・8.1帖・5.6帖、2階:作業場15帖・6.3帖)/家財は所有者が片付けます | ||
| 管理番号 | 長野市空き家バンク 第796号 | 取引態様 | 一般媒介 |
| 最終更新日 | 2026-05-11 | 物件番号 | 449514 |
| 相談窓口 | 企画政策部 移住推進課 移住・定住相談デスク | ||
|---|---|---|---|
| 所在地 | 〒380-8512 長野県長野市鶴賀緑町1613 | ||
| 業務時間 | 08:30〜17:15 | 休日 | 土、日、祝、年末年始 |
| 電話 | 026-224-7721 | FAX | 026-224-5103 |