
<物件の内見について>
№794 長野市西部の閑静な住宅地に立地 南側に用水があり日当り良好 郵便局徒歩1分、コンビニ徒歩2分
| 土地面積 | 165.51m2(公簿)/50.06坪 | 建物面積 | 92.74m2/28.05坪 |
|---|---|---|---|
| 築年月 | 1978年6月 | 間取 | 3SLDK |
№776 長野市中心部の住宅地(角地)に立地 小中高校・県立大学や城山公園に近い 生活に便利 日当り◎
| 土地面積 | 312.28m2(実測)/94.46坪 | 建物面積 | 119.75m2/36.22坪 |
|---|---|---|---|
| 築年月 | 1983年7月 | 間取 | 6DK |
№798 長野市東部の閑静な住宅地に建つ平屋物件 附属長野小中学校に近い 長野東IC・イオンモールも近い
| 土地面積 | 263.21m2(公簿)/79.62坪 | 建物面積 | 76.18m2/23.04坪 |
|---|---|---|---|
| 築年月 | 1981年3月 | 間取 | 3DK |
№791 長野市中心部の一戸建て ドラッグストア至近で生活に便利 駐車場なし 多少の補修が必要
| 土地面積 | 89.25m2(公簿)/26.99坪 | 建物面積 | 120.89m2/36.56坪 |
|---|---|---|---|
| 築年月 | 1979年9月 | 間取 | 7DK |
№790 長野市南東部の住宅地に建つ物件 幅2m長さ18mの宅延部分には軽自動車がギリギリ駐車可能
| 土地面積 | 269.99m2(公簿)/81.67坪 | 建物面積 | 105.12m2/31.79坪 |
|---|---|---|---|
| 築年月 | 1974年9月 | 間取 | 5SDK |
№799 長野市西部の安茂里(あもり)エリアに建つ物件 国道19号、駅やスーパーに近く生活に便利
| 土地面積 | 155.6m2(公簿)/47.06坪 | 建物面積 | 92.74m2/28.05坪 |
|---|---|---|---|
| 築年月 | 1992年2月 | 間取 | 5SK |
№800 緑豊かな飯綱高原の県道沿いに建つ物件 前オーナーが始めたリフォームが未完成の状態 車庫付き
| 土地面積 | 659m2(公簿)/199.34坪 | 建物面積 | 84.49m2/25.55坪 |
|---|---|---|---|
| 築年月 | 1977年8月 | 間取 | 2LDK |
№804 長野市東部の農村集落に建つ物件 ガレージ付き 現況のまま入居可能 イオンモール須坂に近い
| 土地面積 | 317.06m2(公簿)/95.91坪 | 建物面積 | 174.78m2/52.87坪 |
|---|---|---|---|
| 築年月 | 1991年1月 | 間取 | 6LDK |
№789 信州新町越道(こえどう)地区の物件 多少の改修で入居可能 宅地の上段に接する畑が付く 眺望◎
| 土地面積 | 904.08m2(公簿)/273.48坪 | 建物面積 | 176.64m2/53.43坪 |
|---|---|---|---|
| 築年月 | 1975年11月 | 間取 | 7DK |
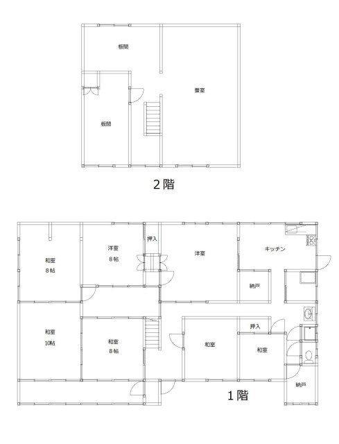
№784 安茂里の杏花台という高台に建つ物件 1階と2階で分かれる二世帯住宅 設備は多少の改修が必要
| 土地面積 | 287.99m2(公簿)/87.11坪 | 建物面積 | 197.08m2/59.61坪 |
|---|---|---|---|
| 築年月 | 1999年7月 | 間取 | 7LDK |
No.806 大岡地区・笹久(ささきゅう)集落に建つ物件 現状のままで居住可能 北アルブスの山並みを望む
| 土地面積 | 7566.5m2(公簿)/2288.86坪 | 建物面積 | 169.25m2/51.19坪 |
|---|---|---|---|
| 間取 | 9K | ||